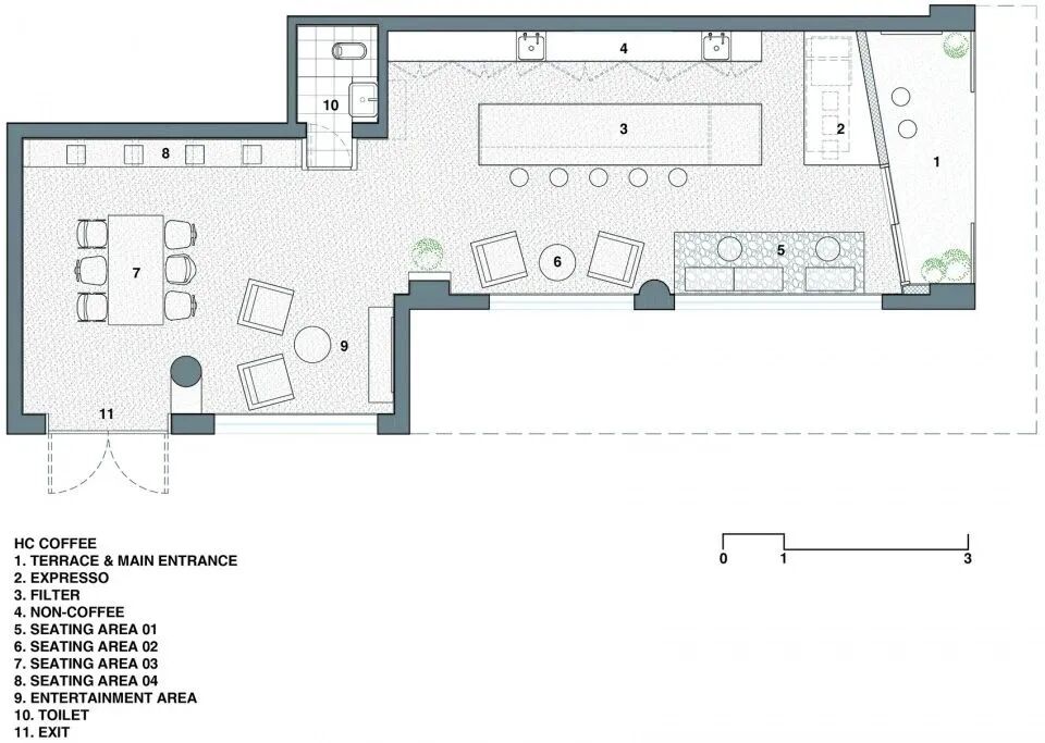
后方的休闲区 © 李仁胡扯咖啡坐落于苏州老城区鹅颈湾。通过将最初位于购物中心的店铺,以外卖为主的经营模式,搬迁至沿街店铺;一边是热闹的街道,一边是富有年代感的居民楼,闹中取静,给大家更多空间和时间坐下来一起闲谈,一起感受生活。Rachel的设计初衷与业主不谋而合,舒适的室内环境结合趣味的游戏摆件,温馨、放松。将空间划分为“入口露台”、“开放式厨房”、“起居室”、“餐厅”等;让每位参与进来的咖啡爱好者,都能成为胡扯“大家庭”的一员。内退式入口给露台提供了足够的空间,无论是在室内还是入口露台就坐,都能够在品尝咖啡的同时,与周围环境保持互动。▼入口开放式厨房 © 李仁▼不同风格的座椅 © 李仁▼内退式入口形成露台 © 李仁▼入口处的装饰 © 李仁内部在保留原始结构基础上,以水泥墙面、水泥地砖为背景,通过选取马里奥兄弟的红色与绿色,将室内休闲区与功能区区分开。同一个室内空间,多种座位方式的尝试,根据每个人自己的喜好选择,完全不一样的体验。胡桃木色为主的家具与低饱和度色彩趣味的点缀,相互共存。室内暖白光源,无论是白天还是夜晚,均让室内拥有日落般的惬意。▼马里奥兄弟的红色与绿色,将室内休闲区与功能区区分开 © 李仁▼后方的休闲区 © 李仁设计方:王媞 摄影版权:李仁
你还可以长按下方二维码
关注磐尚设计
王宜凡
Tel :15189756260
微信:wangyifan-hx
官网☞www.ps-sj.cn☜
地址:石家庄市裕华区长江大道 筑业高新国际A-08k
商业合作 | 求职 | 交友 | 砍砍人生


